Huset vårt på Byåsen i Trondheim

I 1999 kjøpte vi et koselig lite hus med stor tomt på Byåsen, vi kjøpte med tanke på utbygging. I 2001 startet vi med utbyggingen, det viste seg at grunnflaten på utbygget ble større enn huset som det var fra før. Selve utbyggingsdelen skulle gi oss 4 nye soverom, og de soverommene vi hadde fra før skulle involveres i stuen og i kjøkkenet. Underveis fant vi ut at det egnet seg godt å bygge en utleie leilighet under terrassen. Så byggingen ble utsatt litt mens ny byggesøknad ble sendt inn og godkjent.

 

Huset som det så ut da det var ferdig bygget i 1957 (til venstre). Og huset som det så ut sommeren 2014.

Bildene er tatt i omtrent samme vinkel.

Trykk for å se bilde i større format  

 

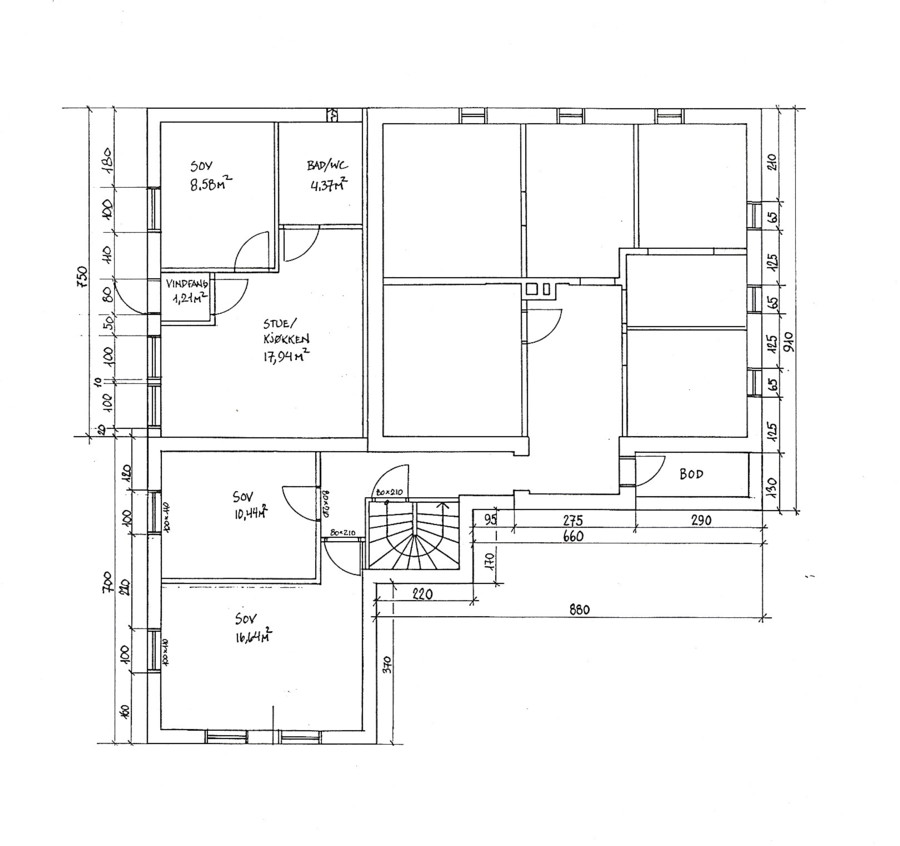
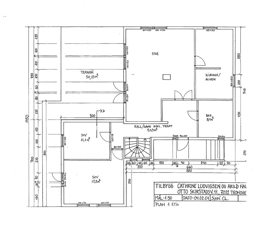
Her er plan og fasade tegninger av huset som det skal bli når det er ferdig.

Trykk for å se bilde i større format  Trykk for å se bilde i større format  Trykk for å se bilde i større format

Trykk for å se bilde i større format  Trykk for å se bilde i større format  Trykk for å se bilde i større format  Trykk for å se bilde i større format

 

Første trinn i utbyggingen var å rive terrasse og grave ut tomten

Trykk for å se bilde i større format   Trykk for å se bilde i større format

 

Etter at grunnmuren var støpt var det tid for å sette opp forskaling, "innervegg" først (bilde til venstre) - Det dukket opp et problem underveis, det nye tilbygget er mye lavere (dypere) enn det gamle huset. Dette fikk konsekvenser for avløpet, nytt avløp gjennom hele tomten måtte legges (bilde i midten - ser avløpet starter på bilde til høyre).

Trykk for å se bilde i større format   Trykk for å se bilde i større format   Trykk for å se bilde i større format

 

Etter at "innerveggene" på forskalingen var satt opp var det tid for utsparring til vinduer og dør, armeringen ble også satt opp.

Trykk for å se bilde i større format   Trykk for å se bilde i større format   Trykk for å se bilde i større format

 

Til slutt ble "ytterveggene" på forskalingen satt opp (bilde til venstre), og veggene ble støpt - Så var det tid for støping av dekke over utleieleiligheten, eller vår terrasse (bilde i midten og til høyre).

Trykk for å se bilde i større format   Trykk for å se bilde i større format   Trykk for å se bilde i større format

 

Her begynner utbygget å ta form. Våre nye soverom i første etasje og underetasje (bilde til venstre). Det nye inngangspartiet er her i startfasen (bilde til høyre).

Trykk for å se bilde i større format   Trykk for å se bilde i større format

 

Her legges det dekke, og settes opp rekkverk på terrassen (bilde til venstre). Og blir etter hvert tatt flittig i bruk av to og fire-bente.

Trykk for å se bilde i større format   Trykk for å se bilde i større format   Trykk for å se bilde i større format   Trykk for å se bilde i større format

 

Huset begynner etter hvert å ta sin rette form, og i 2007 så det sånn ut. Første bilde er slik det nå ser ut fra veien. Andre bildet er inngangspartiet til utleieleiligheten (stor terrasse over), ser noe av plankene til fremtidig terrasse stikker frem over vinduene (terrassen skal med andre ord bli enda større). Tredje og fjerde bilde er tatt fra hagen, siste bilde kan man se inngangspartiet til hovedhuset.

        

For å komme til første siden på vår hjemmeside